Ein Haus mit Garten und zwei Personen auf der Terrasse.

Simply Dachgeschoss S

ab 295.500€

Das Simply Dachgeschoss S ist die kompakte Lösung für alle, die effizient bauen und trotzdem komfortabel wohnen möchten. Im Erdgeschoss sorgt der offene Wohn-/Essbereich für ein angenehmes Raumgefühl, während im Dachgeschoss zusätzliche Räume für Familie, Gäste oder Homeoffice entstehen. Ideal für flexible Wohnideen auf überschaubarer Fläche.

Preis gem. Leistungspaket SIMPLY HOME

Eckdaten

1-Kind

2-Kinder

Abstellraum

DG

EG

Einfamilienhaus

Garderobe

Gäste-WC

Satteldach

Simply Home

Wendeltreppe

Grundrisse

Klicken Sie auf das Bild für eine größere Ansicht.

Grundriss einer Wohnung mit Terrasse.

Simply Dachgeschoss S – Hauseingang Traufseite

Grundriss eines Erdgeschosses mit Küche, Wohnzimmer und Terrasse.

Simply Dachgeschoss S – Hauseingang Giebelseite

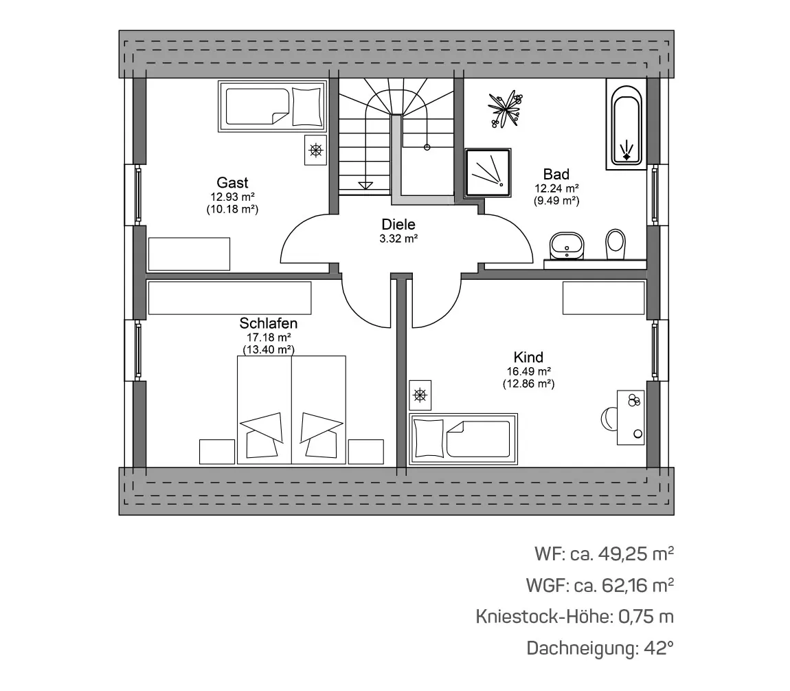
Grundriss des Obergeschosses mit Zimmeraufteilung.

Simply Dachgeschoss S – Dachgeschoss

Architektur & Raumerlebnis

Das SIMPLY Dachgeschoss S steht für modernes, kompaktes Wohnen mit klarer Architektur und einem offenen Grundriss, der trotz effizienter Planung ein überraschend großzügiges Raumgefühl schafft. Große Fensterflächen sorgen für helle Räume und eine freundliche Atmosphäre, die das Zuhause leicht und einladend wirken lässt. Wie bei den SIMPLY-Varianten gewohnt, ist auch dieses Haus im Erdgeschoss in zwei Ausführungen möglich – je nachdem, ob der Hauseingang auf der Trauf- oder auf der Giebelseite liegen soll. So lässt sich das Haus flexibel an Grundstück und Ausrichtung anpassen und bleibt dabei in seinem Wohngefühl konsequent offen und modern.

Im Erdgeschoss bildet der offene Wohn- und Essbereich den Mittelpunkt des Hauses. Die Küche ist harmonisch integriert und unterstützt das kommunikative Wohnen, bei dem Kochen, Essen und Zusammensein ganz selbstverständlich zusammengehören. Durch den direkten Zugang zur Terrasse entsteht ein fließender Übergang nach draußen, der den Wohnraum erweitert und das Haus noch heller wirken lässt. Gäste-WC und Hauswirtschaftsbereich sind sinnvoll angeordnet und sorgen dafür, dass im Alltag alles seinen Platz hat, ohne die Wohnräume zu überladen.

Im Dachgeschoss setzt sich die familienfreundliche Struktur fort und nutzt die gemütliche Raumwirkung unter dem Dach besonders stimmig aus. Neben dem Schlafzimmer entsteht ein weiteres Zimmer, das flexibel als Kinderzimmer, Gästezimmer oder Rückzugsraum genutzt werden kann. Das Bad rundet die Etage komfortabel ab und macht den Grundriss alltagstauglich und angenehm unkompliziert.

So vereint das SIMPLY Dachgeschoss S moderne Architektur, clevere Grundrissplanung und flexible Wohnqualität zu einem Zuhause, das kompakt geplant ist – und sich dennoch wunderbar offen und stimmig anfühlt.

Impressionen

Ein modernes Einfamilienhaus mit rotem Dach.
Ein modernes Einfamilienhaus mit rotem Dach.
Ein Haus mit Garten und zwei Personen auf der Terrasse.
Laptop und Smartphone mit Hausdesign-Software.

Online konfigurieren

  • Schlüsselfertiges Traumhaus selbst konfigurieren
  • Individuelle Anpassung mit Simply Upgrades
  • Festpreis-Exposé in wenigen Schritten
  • Persönliche Beratung durch Bauberater
  • Schnelle Realisierung dank optimierter Prozesse
  • Moderne Gebäudetechnik inklusive
  • Entspannt bauen lassen

Pluspunkte

  • 3 Schlafzimmer insgesamt
  • Bad im Dachgeschoss
  • Gästezimmer möglich
  • Offener Wohn Essbereich
  • Abstellraum/Stauraum im Haus
  • Gäste-WC im Erdgeschoss
  • Hauswirtschaftsraum vorhanden
  • Separate Küche

Highlights aus der Leistungsbeschreibung

NEHMEN SIE MIT UNS
KONTAKT AUF

Telefon: 09244 / 98 282-0
Fax: 09244 / 98 282-20
E-Mail: info@wb-buettner.com

Matthias, Alisa, Manuela und Philipp betrachten eine Badezimmereinrichtung in unserer Ausstellung.

Das könnte Sie auch Interessieren

Personen diskutieren über Immobilienfinanzen mit einem Miniaturhausmodell und Taschenrechner.
Finanzierung

Unsere Architekten entwerfen Ihr Massivhaus ganz nach Ihren Vorstellungen. Ob fertig geplanter Entwurf oder maßgeschneiderte Skizze, wir begleiten Sie von der ersten Idee bis zum fertigen Haus.

mehr Infos
Reihenhäuser mit Gärten und umliegender Natur.
All in One

All in One – Ihr Zuhause aus einer Hand: Vom Grundstück bis zur fertigen Außenanlage bieten wir Ihnen ein komplettes Wohnerlebnis in bester Büttner-Qualität.

mehr Infos
Übergabe eines Hausschlüssels als Symbol für den erfolgreichen Weg ins eigene Zuhause mit Büttner Massivhaus.
Ihr Weg zum Haus

Vom ersten Gespräch bis zur Schlüsselübergabe: Wir führen Sie verlässlich durch jeden Schritt – mit Erfahrung, Festpreisgarantie und echter Handschlagqualität.

mehr Infos