19.04.2026
Erleben Sie modernes Wohnen hautnah!
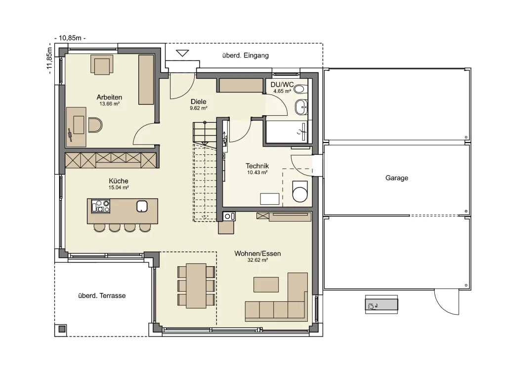
Am Eichelberg in Bayreuth öffnen wir die Türen zu einem individuell geplanten Einfamilienhaus, das durch klare Architektur, durchdachte Raumaufteilung und zeitgemäßen Wohnkomfort überzeugt. Das Haus vereint ein großzügiges Erd- und Obergeschoss mit modernem Flachdach sowie einer geräumigen Großraumgarage – perfekt abgestimmt auf die Bedürfnisse moderner Familien.
Die Hausbesichtigung findet am Sonntag, den 19.04.2026 von 13:00 bis 17:00 Uhr statt. Vor Ort erwartet Sie unser Bauberater Marcel Oberst, der Ihnen das Haus gerne zeigt und sich Zeit für Ihre Fragen rund um Planung, Bau und individuelle Möglichkeiten nimmt.
Nutzen Sie die Gelegenheit, sich inspirieren zu lassen und Ihrem Traumhaus einen großen Schritt näherzukommen.





























